分體式基站精密空調工藝特點
1 機房內設備有明確的工藝參數要求:溫度22±1℃,濕度60±5%
2 機房內設備特別重要時,必須有良好的機房環境保證其安全可靠的運行
3 機房內設備的價格遠遠高于專用精密空調機的價格時
機房設備的價格 ≥15倍專用空調機價格時,建議采用機房專用精密空調機
4 機房專用精密空調機的適用場所
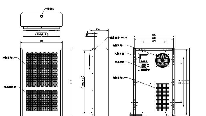
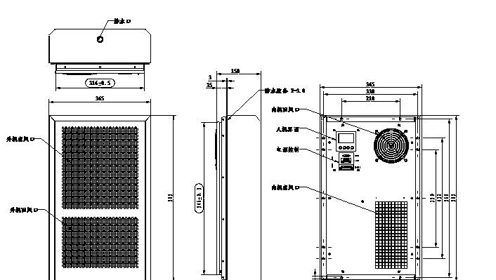
分體式基站精密空調
基站空調是指能夠充分滿足機房環境條件要求的戶外基站專用精密空調機(也稱機房空調),是在近30年中逐漸發展起來的一個新機種。早期的機房使用舒適性空調機時,常常出現由于環境溫濕度參數控制不當而造成機房設備運行不穩定,數據傳輸受干擾,出現靜電等問題。

基站空調的系統配置分類如下:
1、風冷式
2、水冷式
3、乙二醇冷凝/乙二醇冷卻
4、冷凍水
5、雙冷源
6、下送風/上送風
1 通信行業
中國電信: 長途/市話程控交換機房、計費中心計算機房、數據局計算機房、衛星通信中心機房、地面站中心機房
中國移動: 移動程控交換機房、計費中心計算機房、移動通信基站
中國聯通: 長途/市話程控交換機房、計費中心計算機房、數據局計算機房移動程控交換機房、計費中心計算機房、移動通信基站
中國網通: 骨干網絡機房、城域網機房、網絡計費中心計算機房
中國郵政: 綠卡工程、綜合網工程計算機機房
2 銀行\證券\保險公司
各商業銀行大區域信息中心計算機房、省級計算中心機房、地市級計算中心機房
股票\證券所交易中心計算機房、保險公司結算中心計算機房
3 醫院
核磁共振室、貴重儀器室
4 其它行業
民航、電力、石油、海關、鐵路、軍隊、稅務、高速公路、公安、高等院校等的通信中心機房和計算中心機房
5 大企業
航空航天、設計院、汽車制造廠、飛機制造廠、造船廠、鐵道機車廠、煉油廠/化工廠、鋼鐵公司總控制中心機房、通信中心機房、計算機中心機房
6 跨國公司
摩托羅拉、愛立信、西門子、北方電信、朗訊科技、寶潔、IBM、HP、SUN、DEC康柏、戴爾電腦等跨國公司中國總部和生產基地的計算機中心機房
7 政府機構\共用事業
國務院各大部委計算機信息中心、各省/市/區級人民政府信息決策中心計算機房、自來水/煤氣公司計算機調度中心機房、地鐵控制中心機房、電力調度中心機房、核電站、日報社/新聞出版機構計算機房
8 特殊用途
精密貴重設備間、博物館文物倉庫、圖書館、檔案館、印鈔廠、大型造紙廠檢驗室、實驗室、有溫濕度要求的其它場所
顯熱比(SHR)
熱負荷分為兩部分:顯熱和潛熱。顯熱的消除或增加會導致干球溫度計的溫度發生相應變化。潛熱與空氣濕度的增加或減少有關。空調系統的總制冷量為調節處理潛熱和顯熱能力的總和。顯熱比為顯冷量在總制冷量中所占的比例。即顯熱比(SHR)=顯冷量/總制冷量
能效比(EER/COP)
空調好不好,關鍵看"能效"。現在空調市場上"能效比"呼聲高漲,那么,什么是空調的"能效比"?能效比就是一臺空調用一千瓦的電能產生多少千瓦的制冷/熱量。分為制冷能效比EER和制熱能效比COP。
ZHONGYOU眾有CA251分體式基站精密空調技術參數表
|
型號 |
CA251 |
||||
|
標準工況(℃,RH) |
24℃,50% |
||||
|
總制冷量(kW) |
26.1 |
||||
|
顯制冷量(kW) |
25.6 |
||||
|
風量(m3/h) |
7800 |
||||
|
標準機機外余壓(Pa) |
75 |
||||
|
電加熱量(kW) |
9 |
||||
|
加濕量(㎏/h) |
8 |
||||
|
電 源(三相四線) |
~380V 50Hz |
||||
|
制冷運行功率(kW) |
8.7 |
||||
|
出回風方式 |
上送風/下送風 |
||||
|
工質 |
R22 |
||||
|
送風機
|
型式 |
低噪音離心式 |
|||
|
數量 |
1 |
||||
|
輸入功率kW |
3.1 |
||||
|
壓縮機 |
類型 |
全封渦旋壓縮機 |
|||
|
數量 |
1 |
||||
|
功率(KW) |
8.1 |
||||
|
加濕器 |
類型 |
電極式 |
|||
|
功率(KW) |
6.8 |
||||
|
接管尺寸 |
1/2″ |
||||
|
空氣過濾器等級 |
G4 |
||||
|
空調機組外形尺寸(長×寬×高) mm |
865×1000×1980 |
||||
|
風冷冷凝機組 |
|||||
|
冷凝風機 |
類型 |
軸流式 |
|||
|
數量 |
1 |
||||
|
功率(KW) |
0.63 |
||||
|
外形尺寸(長×寬×高) mm |
1075×965×940 |
||||
|
數量(臺) |
1 |
||||
注:CA251UA為風冷上送風型,CA251DA為風冷下送風型
【上一個】: 豪華家用型除濕機DH-820B
【下一個】: 低溫冷庫型除濕機CFZ6.3BD